Let our team of DESIGNERS CREATE a space that will optimize your KITCHEN or BAR operations.
The Kitchen is most certainly the heart of any F&B business.
A commercial kitchen’s layout can determine how smoothly the restaurant functions. When the kitchen is designed strategically, it enables the back of house team to work efficiently and produce high-quality meals consistently. When the kitchen is put together haphazardly, it can become an obstacle for the BOH. In a poorly designed kitchen, staff can’t be as efficient because they have to worry about bumping into each other.
Whether you’re opening a new location or updating an existing one, each project should begin with a great design, functional commercial kitchen spaces and foodservice equipment. All of these essentials should make the most of every square mm. Let Katec take your commercial kitchen project to the next level with our industry-leading design services, consulting, and equipment supply.

3D KITCHEN DESIGN
No matter how big or small your space, our team can help you find the perfect commercial kitchen floor plan, and we pride ourselves on being one of the most attentive, creative, and competitively priced kitchen design companies in Viet Nam. By using 3D Kitchen Design as your kitchen planner, you will be able to easily visualise your work area layout and in turn, make the planning of your commercial kitchen’s design and fit-out a very smooth process.


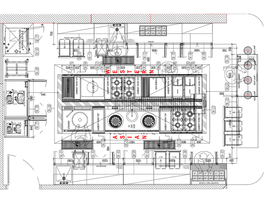
LAYOUT DESIGN
Due to the in-depth experience of our in-house design department in the kitchen industry, they are able to design any type of catering facility.
The design team consults with the client and then integrates their ideas into a visualized plan.
The CAD layouts provide the client with an excellent point of reference to ensure that our work perfectly corresponds with what was visualized including equipment specications and electro – mechanical services.